Attico in vendita

Modena, Stradello Fossa Buracchione - Baggiovara
€ 798.000
5 locali 5 locali
266 Mq 266 Mq
3 bagni 3 bagni

Attico in vendita

Modena, Stradello Fossa Buracchione - Baggiovara

Descrizione annuncio

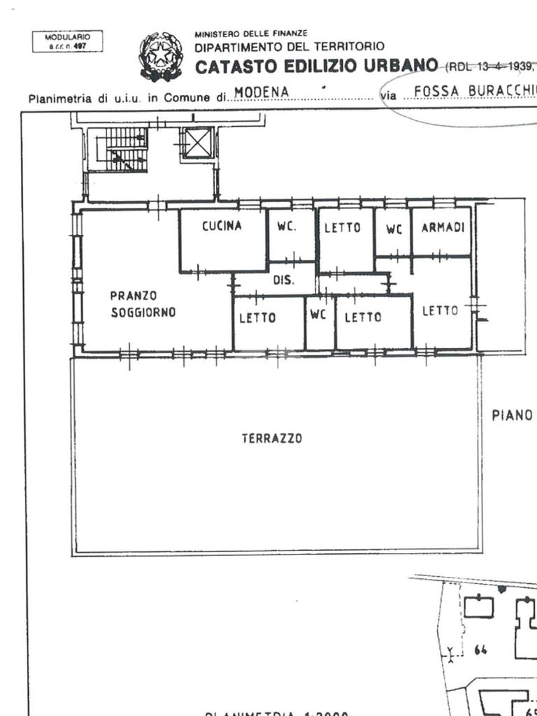
BAGGIOVARA: è disponibile in vendita un attico che offre ampi spazi e comfort moderni. Situato all'ultimo piano di un edificio residenziale con ascensore, l'immobile si estende su 266 mq ed è composto da cinque locali così distrubuiti: ingresso su soggiorno e sala con ampio terrazzo 250mq, ideale per momenti di relax all'aperto, cucina abitabile separata, disimpegno, bagno principale, lavanderia cieca, stanza adibita a studio, camera 3/4, due camere matrimoniali di cui uno con bagno privato e ampia e luminosa cabina armadio.

L'immobile è dotato di aria condizionata, assicurando un ambiente confortevole in ogni stagione. Completano la proprietà un box auto e due posti auto, offrendo praticità e sicurezza.

L'immobile, costruito nel 2002, rappresenta una soluzione abitativa moderna e ben collegata ai servizi della zona.

Per informazioni contattare Daniele 377/0953657

Mostra tutto

Nelle vicinanze

Trasporto pubblico Trasporto pubblico
Trasporto pubblico
100 m
Jacopo da Porto bivio Cavezzo
Jacopo da Porto bivio Cavezzo
270 m
Bertola-Baggiovara
Bertola-Baggiovara
620 m
Baggiovara Ospedale
Baggiovara Ospedale
830 m
Ricariche auto elettriche Ricariche auto elettriche
Duferco Ospedale di Baggiovara
830 m
Scuole Scuole
Scuola Primaria Statale "R. Montecuccoli"
80 m
Scuole
1,1 Km
Scuola Primaria Statale "San Geminiano"
3,0 Km
Farmacia Farmacia
Parafarmacia Conad
220 m
Farmacia Artemisia
630 m
Farmacia
1,3 Km
Ospedali Ospedali
Ospedale Sant’Agostino–Estense
540 m
Ospedale Villa Igea
2,3 Km
Supermercati Supermercati
Conad
240 m
Ipercoop
2,9 Km
Bar Bar
Bar
210 m
Ristoranti Ristoranti
Ristorante Pizzeria Angeli e Demoni
660 m
Nero Balsamico
740 m
Ristoranti
1,2 Km
Ca' del Rio Resort
1,6 Km
Oca Bianca
1,9 Km
Mostra tutto

Caratteristiche

Rif.:
61201205
Piano:
2 di 2 con ascensore (ultimo Piano)
Box:
1
Posti auto:
2
Terrazzi:
1
Camere da letto:
3
Mostra tutto
Prezzo Prezzo
€ 798.000
Rata mutuo Rata mutuo
€ 3.788 / mese
Spese annue Spese annue
€ 3.750
Proponi il tuo prezzoProponi il tuo prezzo

Classe Energetica

D
D
D
D
D
D
D
D
D
EP globale non rinnovabile:
158.66 kW h/m² anno
EP invernale del fabbricato:
EP estiva del fabbricato:
Anno di costruzione:
2002
Riscaldamento:
Autonomo
Tipo impianto:
A radiatori
Tipo alimentazione:
Metano

Ti interessa visionare l'immobile?

Fissa un appuntamento  Fissa un appuntamento

Richiedi informazioni

Clicca su Leggi per aprire l'informativa
* Questi campi sono obbligatori

Calcola il tuo mutuo

Semplice e senza impegno
Anticipo

( % )
Mutuo

( % )

pochi semplici passi

inserisci i tuoi dati
Questionario completato
Grazie per aver richiesto un appuntamento senza impegno con un nostro Consulente del Credito e Assicurativo.

Hai inserito correttamente tutti i dati necessari e a breve riceverai una e-mail con un link da convalidare per inviare i tuoi dati.
Affiliato
Studio Estense Srl
Via Giardini Nord, 381/383 41026 Formigine (MO)

Il nostro staff


  • Emanuele Lodi
    Affiliato

  • Michela Brugnoni
    Coordinatrice

  • Francesco Bianco
    Collaboratore

  • Mirco Libbra
    Affiliato

  • Andrea Raffaele Merola
    Collaboratore

  • Alessia Scunzani
    Coordinatrice

  • Gabriele Venturi
    Affiliato
Via Giardini Nord, 381/383 41026 Formigine (MO)
Zona: Casinalbo-Baggiovara-Magreta-Corlo
Mostra su mappa
Orari: dal lunedì al venerdì con orario 09.00-13.00 15.00-20.00 ed il sabato con orario 09.00-13.00 15.00-18-00
Affiliato
Studio Estense Srl
Via Giardini Nord, 381/383 41026 Formigine (MO)

2026 Tecnocasa Franchising S.p.A. - P. IVA 08365160152 - Via Monte Bianco 60/A 20089 Rozzano (MI). Ogni agenzia ha un proprio titolare ed è autonoma. Privacy policy | Policy utilizzo | Cookie policy